Teen Center Campaign

The Campaign to Support the building of a new Teen Center on land adjacent to the club and an endowment to support the center’s programs.

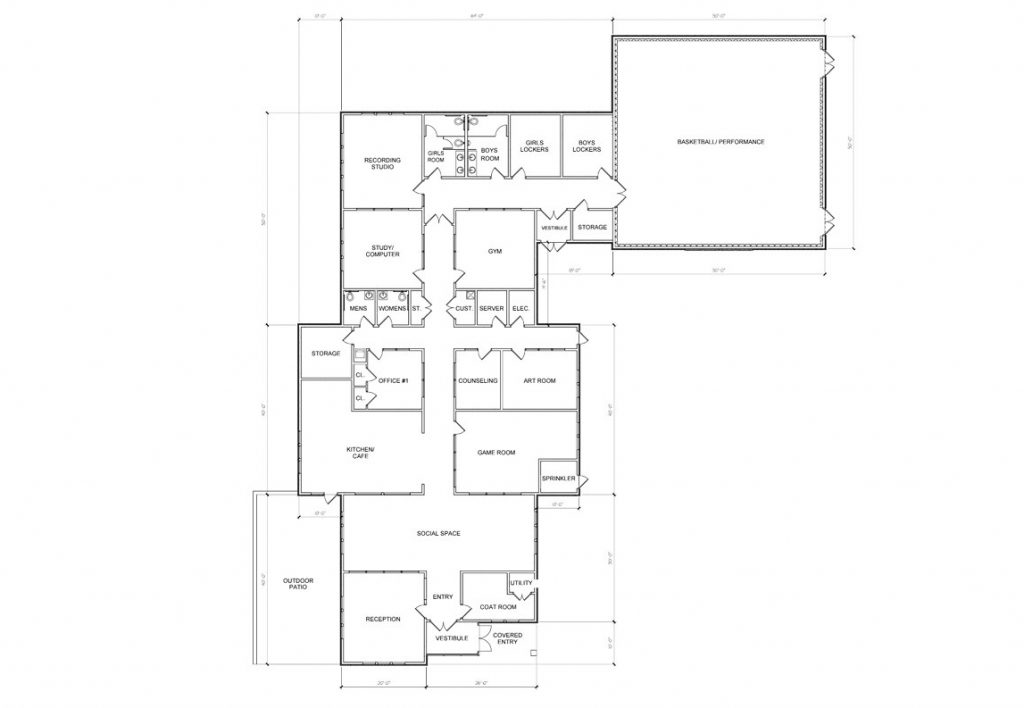
Teen Center Plans

 → Click on image to enlarge 

About the Project

  • Build a Teen Center adjacent to the existing Kraft Family Clubhouse!
  • Construct the Teen Center on land already granted by the Town of Mashpee.
  • The new building will enable teens to have their own space.
  • Improve programs – expand the existing arts & music programs.
  • Teen programs will have a more focused approach to workforce, life skills, and college/career readiness.

The Teen Center will include:

  • Mental Health room for in-house counseling
  • Music room with a recording studio
  • Half basketball court
  • Education room equipped with workspaces, laptops, and media equipment.
  • Meeting room to hold club meetings and small-group high-impact programs
  • Art room and Maker’s space equipped with supplies, technology, and graphic arts equipment
  • Full kitchen and snack bar
  • Health and Fitness room, with an area for weights, and an area for yoga and fitness classes

Our Tax Status

The Boys & Girls Club of Cape Cod is a 501(c)(3) nonprofit organization. As such, it is exempt from federal income tax under Section 501 (c)(3) of the Internal Revenue Code, and contributions to the organization are therefore tax deductible to the extent allowed by law.

Skip to content